查看: 12782|回复: 3

统计视图问题

li1

升级   2.79%

21

主题

23

回帖

279

积分

注册会员

Rank: 2

积分
279
发表于 2022-6-14 00:00:16 | 显示全部楼层 |阅读模式
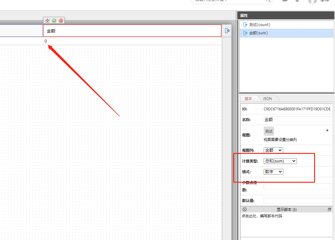
有数据为什么统计出来是0呢
1655135737296.jpg
1655135825713.jpg
1655135833604.png
1655135846708.jpg
回复

使用道具 举报

升级   100%

139

主题

1万

回帖

4万

积分

超级版主

Rank: 8Rank: 8

积分
41458
发表于 2022-6-14 09:55:47 | 显示全部楼层
您金额这一列是数字列吗?需要字段是数字的才可以总和,您可以先试试看数量,是否能统计?
回复

使用道具 举报

li1

升级   2.79%

21

主题

23

回帖

279

积分

注册会员

Rank: 2

积分
279
发表于 2022-6-14 10:29:23 | 显示全部楼层
论坛管理员 发表于 2022-6-14 09:55
您金额这一列是数字列吗?需要字段是数字的才可以总和,您可以先试试看数量,是否能统计? ...

数量也是0
回复

使用道具 举报

升级   100%

139

主题

1万

回帖

4万

积分

超级版主

Rank: 8Rank: 8

积分
41458
发表于 2022-6-14 13:33:03 | 显示全部楼层
哦,明白了,其实您的统计是需要一个分类的,某一个分类总和多少,数量多少
比如说,您视图按部门分类,某个部门这样去统计
建议您去看一下官网数据中心视图方面的视频,有这部分内容讲解
回复

使用道具 举报

发表回复

您需要登录后才可以回帖 登录 | 立即注册

本版积分规则

联系客服 关注微信 下载APP 返回顶部 返回列表
viewthread